ARLINGTON PLAN
ELEVATIONS

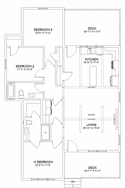
DESCRIPTION
This well-planned single-story home offers a perfect balance of comfort, functionality, and open living. Featuring 3 bedrooms and 2 bathrooms, the layout is ideal for both everyday living and entertaining.
The heart of the home is a spacious open-concept living and kitchen area, highlighted by a large island, ample counter space, and seamless flow into the main living room. Just off the living space, a rear deck extends your living outdoors—perfect for relaxing or hosting gatherings.
The primary (master) suite is privately located and includes a full bath and convenient access to nearby storage and circulation spaces. Two additional bedrooms are positioned on the opposite side of the home, sharing a full bathroom—making it a great setup for family or guests.
Bedrooms
3 Bed
Bathrooms
2 Bath
Square Feet
1320 sq. ft.
Footprint
57 ft. x 52 ft.
Garage
2-Car Included
FLOORPLANS & OPTIONS

